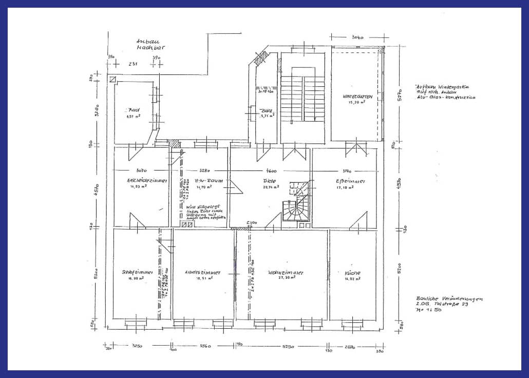
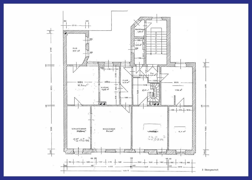
Entdecken Sie dieses beeindruckende Wohn- und Geschäftshaus im Herzen von Gera, das im Jahr 1902 erbaut und kürzlich umfassend saniert wurde. Dieses prachtvolle Gebäude erstreckt sich über vier Etagen und bietet eine Gesamtwohnfläche von ca. 309 m², gelegen auf einem Grundstück von ca. 275 m².
Die Immobilie ist ab sofort verfügbar und stellt somit eine seltene Gelegenheit dar, ein Stück Geschichte in einem ausgezeichneten Zustand zu erwerben. Nutzen Sie die Chance, in eine Immobilie mit Charakter und zahlreichen Nutzungsmöglichkeiten in einer zentralen Lage von Gera zu investieren.
Kontaktieren Sie uns für weitere Informationen oder um einen Besichtigungstermin zu vereinbaren.









